LEP arquitectura  
LEP arquitectura  
  • Inici
  • Projectes
    • Habitatge
    • Patrimoni
    • Equipaments
    • Interiorisme
    • Espai públic
    • Urbanisme
  • L'estudi
    • LEP arquitectura
    • Concursos i premis
    • Col·laboradors
    • Contacte
  • Blog
  • Català   Español
  • Instagram
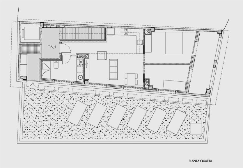
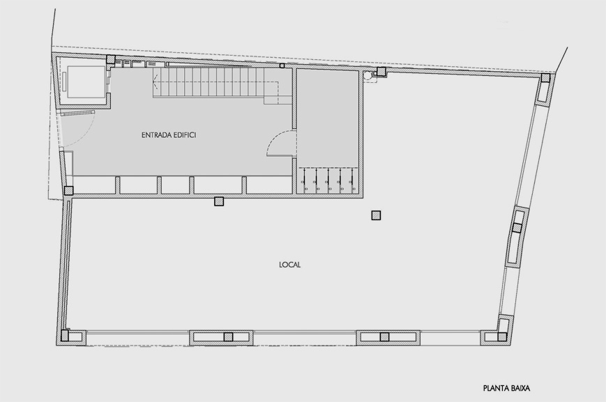
Inici > Projectes > 10 habitatges protegits i un local
  • 10 habitatges protegits i un local

    C. Sastres, 37, Olot

    OBRA PREMIADA
    Concurs 2006. Primer premi.
    HabitatgeObra nova

    Client
    Gestora Urbanística Olotina S.A / Ajuntament d’Olot

    Any
    2007-2009

    < <
    top
  • 10 habitatges protegits i un local 10 habitatges protegits i un local 10 habitatges protegits i un local 10 habitatges protegits i un local 10 habitatges protegits i un local 10 habitatges protegits i un local 10 habitatges protegits i un local
  • © LEP arquitectura 2026 |  Avís legal  |  Política de privacitat  |  Política de cookies  |  Panell de cookies
  • Instagram