LEP arquitectura  
LEP arquitectura  
  • Inici
  • Projectes
    • Habitatge
    • Patrimoni
    • Equipaments
    • Interiorisme
    • Espai públic
    • Urbanisme
  • L'estudi
    • LEP arquitectura
    • Concursos i premis
    • Col·laboradors
    • Contacte
  • Blog
  • Català   Español
  • Instagram
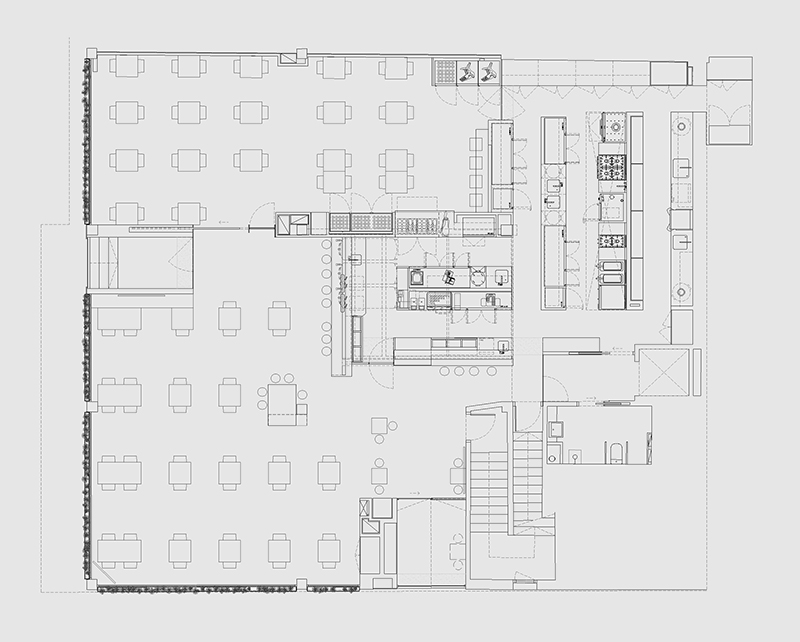
Inici > Projectes > restaurant-bar graner + roent
  • restaurant-bar graner + roent

    Manel Cazurro cant. ctra. Barcelona. Girona

    Interiorisme

    Client
    Porcus Grup S.L.

    Any
    2021-2022

    <  
    top
  • restaurant-bar graner + roent restaurant-bar graner + roent restaurant-bar graner + roent restaurant-bar graner + roent
  • © LEP arquitectura 2026 |  Avís legal  |  Política de privacitat  |  Política de cookies  |  Panell de cookies
  • Instagram